Ondergrondse autostaanplaatsen en berging
Staanplaats voor € 16.000
Maastrichtersteenweg 36-42, 3700 Tongeren
Ref: 234








Bouwjaar: 2021
Omschrijving
In Residentie Domus Anguli worden vijf staanplaatsen te koop aangeboden. De vraagprijs per staanplaats bedraagt 16.000 EUR. Daarnaast is er een berging beschikbaar voor 8.000 EUR. De berging heeft een oppervlakte van 16 m².
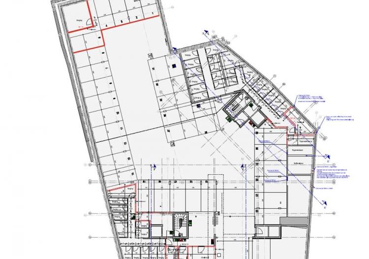
Op het kelderplan zijn de staanplaatsen en de berging in het rood aangeduid.
Indien u meer informatie wilt of een afspraak ter plaatse wenst, kunt u terecht op onze website www.confideo-immo.be of neem gerust telefonisch contact op via 012 23 23 11.
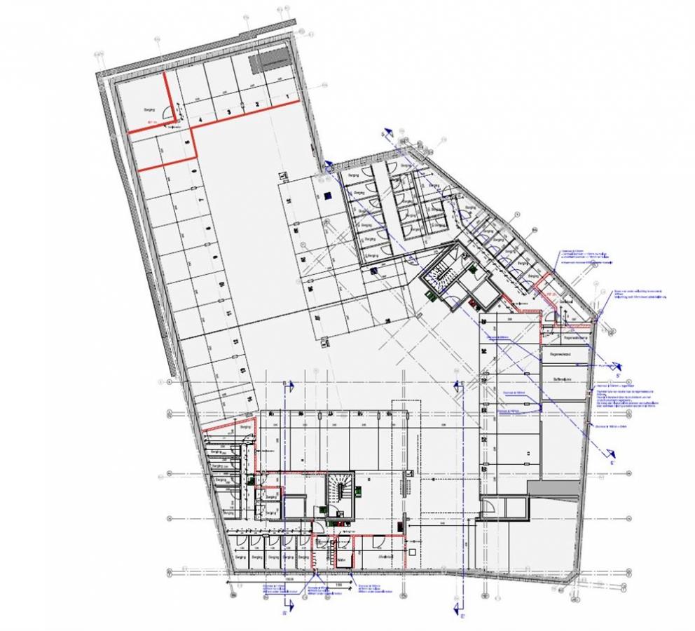
Op het kelderplan zijn de staanplaatsen en de berging in het rood aangeduid.
Indien u meer informatie wilt of een afspraak ter plaatse wenst, kunt u terecht op onze website www.confideo-immo.be of neem gerust telefonisch contact op via 012 23 23 11.
Indeling
Verdieping -1
Garage | 12 m² |
Ruimtelijke ordening
Bouwvergunning | Ja |
Recente bestemming | Woongebied |
Dagvaardingen | Nee |
Rechterlijke herstelmaatregel | Nee |
Bestuursdwang | Nee |
Last onder dwangsom | Nee |
Minnelijke schikking | Nee |
Voorkooprecht | Nee |
Verkavelingsvergunning | Ja |
Effectief overstromingsgevoelig | Nee |
Mogelijk overstromingsgevoelig | Nee |
Afgebakend overstromingsgebied | Nee |
Afgebakende oeverzone | Nee |
G-score | A |
P-score | A |
Beschermd pand? | Nee |
EPC gegevens
0
Financiële info
Prijs | € 16.000,00 |
Registratierechten en erelonen | € 3.151,94 |
Overige Info
Vrij op | bij akte na betaling |
Aantal garages | 1 |
Bebouwing
Bebouwing | gesloten |
Bouwjaar | 2021 |
Elektrisch keuringsattest | Niet ingegeven |
Renovatieplicht | Niet ingegeven |
Alle aanbiedingen gelden onder voorbehoud van fouten, eerdere verkoop, prijswijzigingen of vergetelheid.